Der Unterbau
Projekte > Meine Anlage
Der Unterbau
Hier geht es jetzt um den Unterbau meiner Samba-Anlage, den ich mit dem CAD-System AutoSketch konstruiert habe:
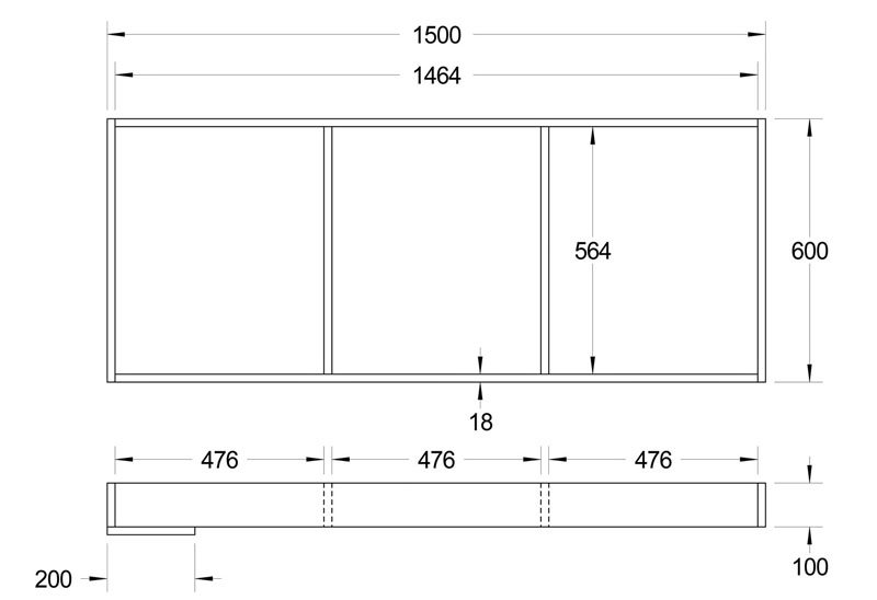
Die roten Linien zeigen Rahmenkästen mit einheitlichen Maßen, nämlich 150 x 60 cm. Die grünen Quadrate mit den Kreisen sind die Tischbeine und die blauen Linien zeigen individuell zugeschnittene Rahmenteile. Die Rahmen werden einheitlich aus 10 cm hohen Streifen Birken-Multiplexplatte mit 18 mm Stärke gefertigt. Vor der Planung des Unterbaus habe ich das Heft "Bauen wie Brandl", Eisenbahn-Journal 1/2012 studiert. Brandl, ein professioneller Anlagenbauer, propagiert den Rahmenbau aus Abachi-Holz. Das wollte ich eigentlich auch,musste dann aber feststellen, dass Abachi zwar verfügbar ist, weil es aber ein beliebtes Holz für Saunabänke ist, kommt es mit abgerundeten Kanten und ist auch nicht besonders billig. Weil Spanplatte oder MDF wegen der bekannten Nachteile nicht in Frage kamen, habe ich mich für Birken-Multiplex entshieden. In 18 mm Stärke kostet das Material ca. 25 € pro qm, wenn man ganze Platten kauft. Nach meiner Rechnung brauchte ich sechs Platten von 1,5 x 3 m Größe, also insgesamt 27 qm. Mit meinem Holzhändler habe ich mich dann auf 100 € Zuschnittkosten und 30 € Transportkosten geeinigt. Ich habe dann mit dem CAD-System Zuschnittpläne für alle Platten erzeugt und dem Holzhändler übergeben, drei Tage später hatte ich dann das Holz:
Es gibt nur zwei Breiten, nämlich 10 und 20 cm. 10 cm für die Rahmen und 20 cm für die Aufnahmen der Tischbeine. Für 26 Standard-Rahmen habe ich mir das Material auch auf Länge schneiden lassen. Die Rahmen haben das Format 150 x 60 cm. Weil die Platten 1,5 x 3,0 m groß sind, gibt es praktisch keinen Verschnitt. Die restlichen Platten habe ich in knapp 1,5 m lange (Sägeschnitt) und 10 cm breite Streifen schneiden lassen, die ich für nicht standardisierte Rahmenteile brauche.
Dazu habe ich bei Amazon 32 verchromte und verstellbare Tischbeine gekauft, vier Stück jeweils für 25 €. Hier nun die Zeichnung für die Standard-Rahmen:
Dazu habe ich bei Amazon 32 verchromte und verstellbare Tischbeine gekauft, vier Stück jeweils für 25 €. Hier nun die Zeichnung für die Standard-Rahmen:
Und hier ein fertiger Standard-Rahmen:
Und so wird er gebaut:
Das kurze Brett, das an der Schmalseite innen zu sehen ist, dient nur
als Abstandhalter. Von diesen Rahmen haben wir (der Sohn unserer
Nachbarn und ich) 26 Stück angefertigt, das hat einen Tag gedauert:
Am zweiten Tag haben wir mit der Montage des Unterbaus begonnen. Dazu haben wir an den Rahmen Beine befestigt:
Danach haben wir Halterungen an eine der Längswände geschraubt und die Rahmen damit befestigt.
Hier nochmal die Wandhalterung in groß:
Hier ist der Unterbau zum größten Teil schon fertig. Alle Rahmen sind untereinander mit Innensechskantschrauben M8, Karosseriescheiben und Muttern M8 verbunden:
Nachdem ich den Rahmen fertiggestellt hatte, habe ich die Deckplatten
aus 8 mm Sperrholz beim Holzhändler bestellt, insgesamt 45 Quadratmeter.
Der Holzhändler hat von mir einen Schnittplan bekommen, den ich mit dem
CAD-System gezeichnet habe. Dabei habe ich darauf geachtet, dass die
Platten genau auf den Rahmen passen und nur noch Schrägschnitte
erforderlich sind, die ich selbst mit der Stichsäge ausführen muss. Die
Platten werden auf den Rahmen aufgeständert, so dass ich die richtigen
Höhen erhalte. Der Abstellbahnhof Steinbeck/Elberfeld liegt auf der
Ebene Null, das sind 100 cm über Fußboden. Die Strecke steigt dann bis
zum Bahnhof Küllenhahn auf 120 cm und läuft eben weiter bis zum Bahnhof
Cronenberg, ebenfalls auf 120 cm.
Die Höhen scheinen mir meiner Körpergröße von 183 cm angemessen, außerdem kommen die Enkel erst an die empfindlichen Teile der Anlage heran, nachdem Sie eine entsprechende Körpergröße (und hoffentlich auch Verstand) erreicht haben
Im folgenden Bild seht ihr die ersten Ständer mit den Querriegeln.
Die Höhen scheinen mir meiner Körpergröße von 183 cm angemessen, außerdem kommen die Enkel erst an die empfindlichen Teile der Anlage heran, nachdem Sie eine entsprechende Körpergröße (und hoffentlich auch Verstand) erreicht haben
Im folgenden Bild seht ihr die ersten Ständer mit den Querriegeln.
Und hier die fertigen Deckplatten für die mittlere Anlagenzunge. Die Deckplatten sind noch nicht endgültig befestigt.
Vor der Montage der Aufständerung und der Deckplatten habe ich
sogenannte Verdrahtungskanäle auf dem Rahmen montiert. In ihnen werden
alle Leitungen geführt. Schlitze in den Seiten erlauben das Herausführen
von einzelnen Leitungen, z.B. für die Gleiseinspeisungen. Sind alle
Leitungen verlegt, werden die Kanäle oben mit einer Abdeckung
verschlossen.
Außerdem montiere ich an neuralgischen Punkten sogenannte Hutschienen.
Diese kommen wie die Verdrahtungskanäle aus dem Verteilerbau, schaut mal
in euren Sicherungskasten. Darauf können ohne Schrauberei Komponenten
aufgesteckt und auch leicht wieder abgenommen werden. Ich werde alle
Digitalkomponenten, z.B. Gleisbesetztmeldeplatinen, Servocontroller für
Weichen und Signale, etc. mit Hutschienenklemmen ausstatten, so dass ich
sie bequem montieren kann. Die Platinen, die ich selbst bestücken
werde, statte ich mit professionellen Platinensteckern aus, damit ich
alle Kabelanschlüsse stecken kann, statt mit Schraubklemmen
herumzufummeln oder über Kopf unter der Anlage zu löten.
Hier geht es jetzt um die Ecke in Richtung Küllenhahn.
Weiteres Ständerwerk:
Und hier bin ich am Ende der Wand angelangt:
Wichtig sind auch Ausschnitte in den Querriegeln unter Weichen um Platz für die Antriebe zu schaffen. Das erfordert natürlich eine genaue Planung ohne nachträgliche spontane Änderungen:
Hier auch mal mein wichtigster Helfer. Weil ich außer den Deckplatten
nur mit 10 cm breiten Holzstreifen arbeite, die ich nur ablängen muss,
brauche ich fast nur die Kappsäge.
Auch meine Makita-Tischkreissäge hat mir sehr geholfen:
Weiter geht es mit der Gleisverlegung.